
产品概述
Q9B41F/Q9B41H防爆电动法兰球阀由球阀与3410电动执行器构成,以220V交流单相电源作为驱动电源,接受来自计算机调节器或操作器的4-20mADC,或者1-5VDC输入信号来运转的电动防爆球阀,防爆等级为ExdIIBT4也可以做ExdIICT6。球体密封圈采用了特殊的加工工艺和很新密封材料,使球体表面粗糙度和圆度达到标准要求,从而提高了密封性能和使用寿命、耐高温的能力。顺时板动手柄带动阀杆驱动球体旋转,使介质顺利通过。
应用范围
广泛应用于食品、 、轻工、石油、造纸、化工、教学和科研设备、电力等行业的工业自动控制系统.
阀门设计标准
1、设计与制造:GB12237-89、API608、API 6D、JPI 7S-48、BS5351、DIN3357。
2、法兰尺寸:JB/T74~90(JB74~90)、GB9112~9131、HGJ44~76、SH3406、ANSI B16.5、JIS B2212~2214、NF E29-211、DIN2543。
3、结构长度:GB12221-89、ANSI B16.10、JIS B2002、NF E29-305、DIN3202。
4、检验主试验:JB/T 9092、API 598。
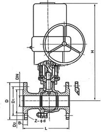
产品结构尺寸图:

球阀安装注意事项:
1.安装施工必须小心,切忌撞击阀门。
2.安装前,应将球阀作一检查,核对规格型号,鉴定有无损坏,尤其对于阀杆。还要转动几下,看是否歪斜,因为运输过程中,很易撞歪阀杆。还要清除阀内的杂物。
3.球阀起吊时,绳子不要系在手轮或阀杆上,以免损坏这些部件,应该系在阀体上。
4.对于球阀所连接的管路,一定要清扫干净。可用压缩空气吹去氧化铁屑、泥砂、焊渣和其他杂物。这些杂物,不但容易擦伤球阀的密封面,其中大颗粒杂物(如焊渣),还能堵死小阀门,使其失效。
5.安装时要留有阀柄旋转的位置。 6.球阀不能用作节流。
7.带传动机构的球阀应直立安装。
